250x600mm - Drzwiczki rewizyjne pod płytki, z uszczelką Naklejane - do ściany GK i glazury - CERAMIKO PURE (25x60cm)
Klapa rewizyjna CERAMIKO PURE marki SILO to model aluminiowych drzwiczek rewizyjnych na stałych zawiasach, wypełnionych wodoodporną płytą gips- kartą, zamykanych na dwa zamki klik-klak, udoskonalony o gumową uszczelkę - przeznaczonych do glazury. Uszczelka chroni przed kurzem, wilgocią. Pełni również funkcję akustyczną.
Płytkę przykleja się bezpośrednio na płytę gips-karton tworząc gładką, jednolitą, elegancko wykończoną całość.
Model dostępny w wymiarach o wielu wariantach. Istnieje także możliwość produkcji na wymiar.
Kod produktu: SI250600CERP
Zapytaj o produkt
Administratorem danych osobowych jest E-REWIZJE.PL. Przetwarzamy je w celu przesłania odpowiedzi na zapytanie. Więcej informacji dotyczących przetwarzania danych osobowych znajduje się w polityce prywatności.
Udostępnianie karty produktu
Cechy produktu
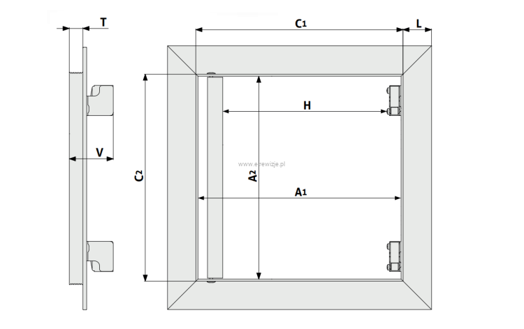
Wymiary drzwiczek
- Szerokość drzwiczek 250 mm
- Wysokość drzwiczek 600 mm
SILO | CERAMIKO PURE
ALUMINIOWA KLAPA REWIZYJNA Z PŁYTĄ GIPS - KARTON
I USZCZELKĄ - MODEL POD PŁYTKĘ 250X600 MM
Klapa rewizyjna CERAMIKO PURE marki SILO to model aluminiowych drzwiczek rewizyjnych na stałych zawiasach, wypełnionych wodoodporną płytą gips- kartą, zamykanych na dwa zamki klik-klak, udoskonalony o gumową uszczelkę - przeznaczonych do glazury. Uszczelka chroni przed kurzem, wilgocią. Pełni również funkcję akustyczną.
Płytkę przykleja się bezpośrednio na płytę gips-karton tworząc gładką, jednolitą, elegancko wykończoną całość.

Główne zalety drzwi rewizyjnych CERAMIKO PURE:
- Model przeznaczony DO GLAZURY - płytkę należy przykleić do płyty GK.
- Płyta gipsowo-kartonowa jest wodoodporna i impregnowana.
- Rewizja posiada spawane, ryflowane i trwałe ramy wykonane z aluminium.
- Drzwiczki mocowane są do ramy za pomocą stałych zawiasów - nie wypadną po otwarciu.
- Rewizję otwiera się poprzez naciśnięcie dwóch zamków klik-klak.
- Wewnątrz ramy znajduje się uszczelką, która chroni przed kurzem, wilgocią. Pełni również funkcję akustyczną
ZNACZNIE TAŃSZA - ALTERNATYWNA WERSJA UKRYTYCH DRZWI REWIZYJNYCH
|
||
![]() |
Elementy konstrukcyjne drzwiczek rewizyjnych CERAMIKO PURE:
Aluminiowa, spawana rama z uszczelką
Ryflowana, spawana rama zewnętrza wykonana z aluminium, wypełniona wokół gumową uszczelką zabezpieczającą otwór rewizyjny przed kurzem i pyłem, pełniącą także funkcję akustyczną.
Wodoodporna płyta gips-karton
Skrzydło wewnętrzne, do którego przykręcona jest zielona, impregnowana i wodoodporna płyta gipsowo-kartonowa. Dzięki impregnacji płyta jest bardziej wytrzymała i doskonale sprawdza się w pomieszczeniach o podwyższonej wilgotności takich jak: łazienka, czy toaleta.

Stałe mocowania - zawiasy
Cały zespół jest połączony za pomocą stałych zawiasów, co umożliwia swobodne otwarcie skrzydła drzwiowego w razie potrzeby bez obaw o upadek płytki.
Zamki zatrzaskowe klik-klak
Wygodne otwieranie i zamykanie gwarantują zamki zatrzaskowe klik-klak, które znajdują się na ramie zewnętrznej. Naciśnięcie wewnętrznego skrzydła rewizji w miejscu zamka spowoduje otwarcie drzwi, natomiast ponowny docisk umożliwi ich zamknięcie.

Konstrukcja klapy CERAMIKO PURE została zaprojektowana z uwzględnieniem obciążenia jakiemu muszą sprostać drzwi w połączeniu z płytką, dlatego bez obaw można przyklejać do nich ceramikę.

Pliki do pobrania
Deklaracja zgodności - drzwiczki rewizyjne SILO
Atest higieniczny - drzwiczki rewizyjne SILO
Karta produktowa - drzwiczki rewizyjne SILO
